REQUEST A TOUR If you would like to see this home without being there in person, select the "Virtual Tour" option and your agent will contact you to discuss available opportunities.
In-PersonVirtual Tour

Listed by Sangaroon Yangchana • MGR REAL ESTATE, INC.
$9,595
3,621 SqFt
UPDATED:
Key Details
Property Type Commercial
Sub Type Office
Listing Status Active
Purchase Type For Rent
Square Footage 3,621 sqft
MLS Listing ID CRCV25024400
HOA Y/N No
Year Built 1992
Lot Size 6.665 Acres
Property Sub-Type Office
Source Datashare California Regional
Property Description
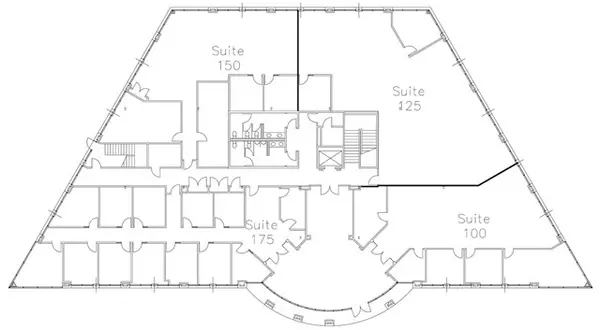
• +/- 176,813 SF, 2-Story, Class A Office Buildings • Premiere Ontario Airport Submarket Location • Prominent I-10 Freeway Visibility • Immediate Access to I-10, at Haven Avenue • Close Proximity to I-15 and 60Freeways • 4/1,000 Parking; Covered, Reserved Parking Available • Card Key Security System; Full Service Gross Leases • Professionally Managed and Maintained • Suite 125 (3,621 RSF) with 2 offices and open floor plan. Suite 125 can be combined with Suite 100 and/or 150 for a total of 9,368 RSF.
Location
State CA
County San Bernardino
Interior
Cooling Central Air, Zoned
Fireplace No
Building
Water Public
Read Less Info

© 2025 BEAR, CCAR, bridgeMLS. This information is deemed reliable but not verified or guaranteed. This information is being provided by the Bay East MLS or Contra Costa MLS or bridgeMLS. The listings presented here may or may not be listed by the Broker/Agent operating this website.
Get More Information

Quick Search
- Homes For Sale in San Francisco, CA
- Homes For Sale in Oakland, CA
- Homes For Sale in Berkeley, CA
- Homes For Sale in Palo Alto, CA
- Homes For Sale in San Jose, CA
- Homes For Sale in Concord, CA
- Homes For Sale in Fremont, CA
- Homes For Sale in Marin, CA
- Homes For Sale in Santa Clara, CA
- Homes For Sale in Daly City, CA
- Homes For Sale in San Ramon, CA
- Homes For Sale in Hercules, CA
- Homes For Sale in Vallejo, CA
- Homes For Sale in Benicia, CA
- Homes For Sale in Fairfield, CA
- Homes For Sale in Redwood City, CA
- Homes For Sale in Richmond, CA
- Homes For Sale in Atherton, CA
- Homes For Sale in Alameda, CA
- Homes For Sale in Hayward, CA
- Homes For Sale in Pleasanton, CA
- Homes For Sale in Livermore, CA
- Homes For Sale in Dublin, CA
- Homes For Sale in San Leandro, CA
- Homes For Sale in Fairfield, CA
- Homes For Sale in Vacaville, CA
- Homes For Sale in Cupertino, CA
- Homes For Sale in Walnut Creek, CA
- Homes For Sale in Dublin, CA
- Homes For Sale in Castro Valley, CA
- Homes For Sale in Mill Valley, CA
- Homes For Sale in Tiburon, CA
- Homes For Sale in Sausalito, CA
- Homes For Sale in Napa, CA
- Homes For Sale in American Canyon , CA
- Homes For Sale in San Rafael, CA
- Homes For Sale in Mountain View, CA
- Homes For Sale in Sunnyvale, CA
- Homes For Sale in Los Gatos, CA



